|  
		 
		  
		
		  
		
		Helmut Berger 
		
		Immobilien und Hausverwaltungen 
		GmbH    | 
		 
		 
		
		Almhäuser auf 
		der Silberleiten  | 
	 
	
	
	
	
	
	
		
			
				| 
					 
								
								
								
								
								HOME  | 
				
					   
					
					Mustergrundrisse   
					 | 
			 
			
				| 
					  | 
			 
			
				| 
					   
					
					  
					   | 
				
					   
					
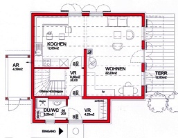
					ERDGESCHOSS  
					
					   
					
					Wohnraum: 22,23 m²  
					
					Küche: 12,85 m² 
					
					Vorraum: 6,86 m² 
					
					Vorraum: 4,23 m² 
					
					Dusche / WC: 3,25 m² 
					
					Abstellraum: 4,39 m² 
					
					Terrasse: 12,00 m² 
					   | 
			 
			
				| 
					   
					
					  
					   | 
				
					 
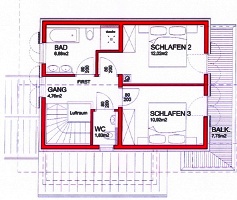
					OBERGESCHOSS 
					 
					
					   
					
					Zimmer: 6,58 m²  
					
					Zimmer: 10,92 m² 
					
					Zimmer: 10,38 m² 
					
					Vorraum: 5,77 m² 
					
					Dusche / WC: 2,50 m² 
					
					Balkon: 5,60 m²  | 
			 
			
				| 
					   
					
					  
					   | 
				
					 
					VARIANTE 
					
					ERDGESCHOSS  
					
					   
					
					Wohnraum/Küche: 30,35 m²  
					
					Zimmer: 12,00 m² 
					
					Vorraum: 4,23 m² 
					
					Dusche / WC: 3,25 m² 
					
					Abstellraum: 4,39 m² 
					
					Terrasse: 12,00 m²  | 
			 
			
				| 
					   
					
					  
					   | 
				
					 
					VARIANTE 
					
					OBERGESCHOSS 
					 
					
					   
					
					Zimmer: 12,02 m²  
					
					Zimmer: 10,92 m² 
					
					Vorraum: 4,76 m² 
					
					Bad: 6,88 m² 
					
					WC: 1,83 m² 
					
					Balkon: 7,75 m² 
					   | 
			 
			 
		 | 
	
	 
	 
	 |